
Plány podlaží

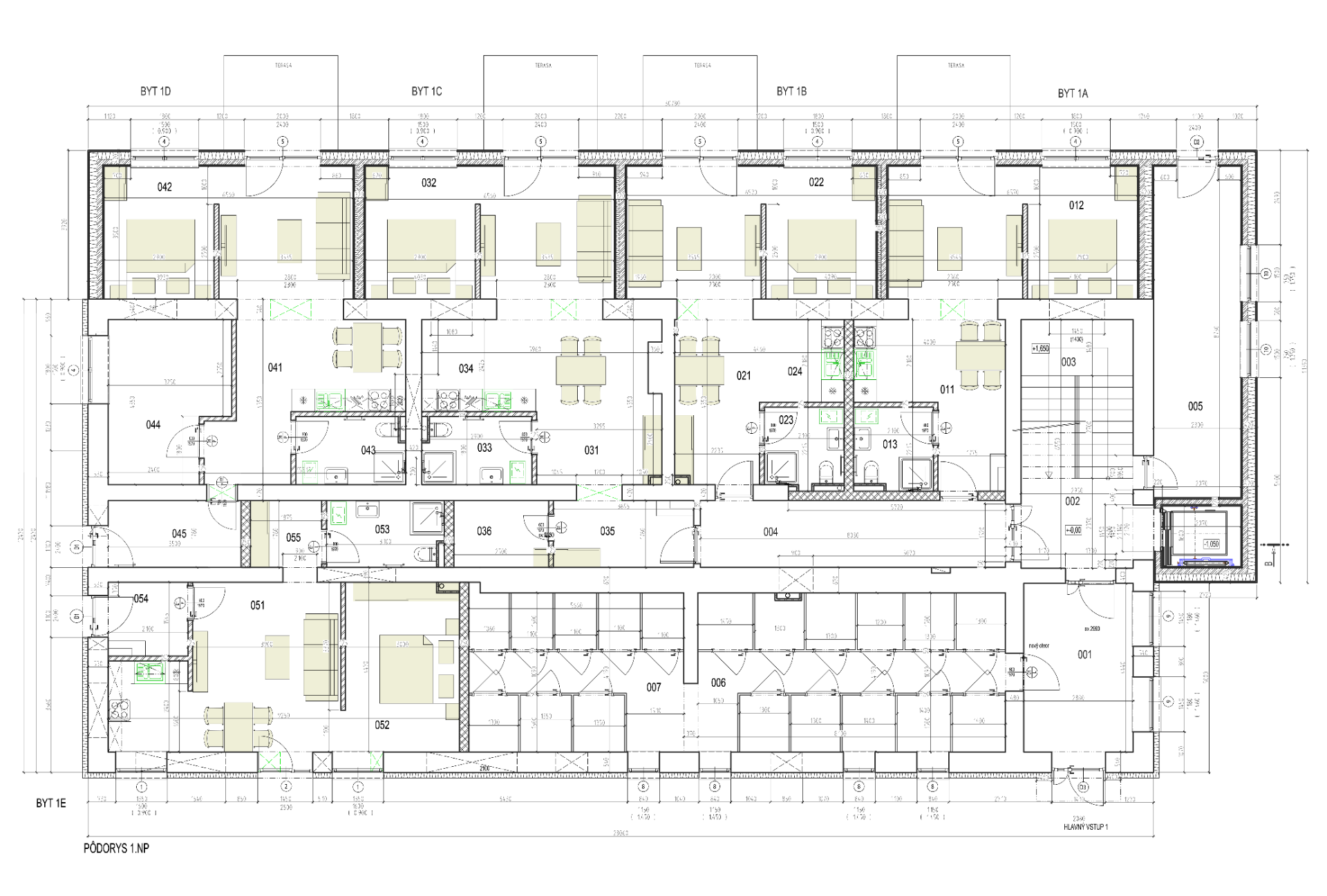
1. nadzemné podlažie
BYT 1A - dvojizbový byt s kúpeľňou a predzáhradkou.
Plocha bytu 40m² + predzáhradka 35m² + pivničná kobka 2m² + vlastné parkovacie miesto, so vstupom cez hlavný vchod budovy. Byt je otočený smerom na Vysoké Tatry.
BYT 1B - dvojizbový byt s kúpeľňou a predzáhradkou.
Plocha bytu 41,5m² + predzáhradka 33m² + pivničná kobka 2m² + vlastné parkovacie miesto, so vstupom cez hlavný vchod budovy. Byt je otočený smerom na Vysoké Tatry.
BYT 1C - dvojizbový byt s kúpeľňou a predzáhradkou.
Plocha bytu 60m² + predzáhradka 33m² + komora v byte + vlastné parkovacie miesto, so vstupom cez hlavný vchod budovy. Byt je otočený smerom na Vysoké Tatry.
BYT 1D - trojizbový byt s kúpeľňou a predzáhradkou.
Plocha bytu 61,5m² + predzáhradka 33m² + pivničná kobka 2m² + vlastné parkovacie miesto, so samostatným vstupom. Byt je otočený smerom na Vysoké Tatry.
BYT 1E - dvojizbový byt s kúpeľňou a predzáhradkou.
Plocha bytu 49m² + predzáhradka 33m² + s úložnou miestnosťou + vlastné parkovacie miesto, so samostatným vstupom. Byt s orientáciou na juh.

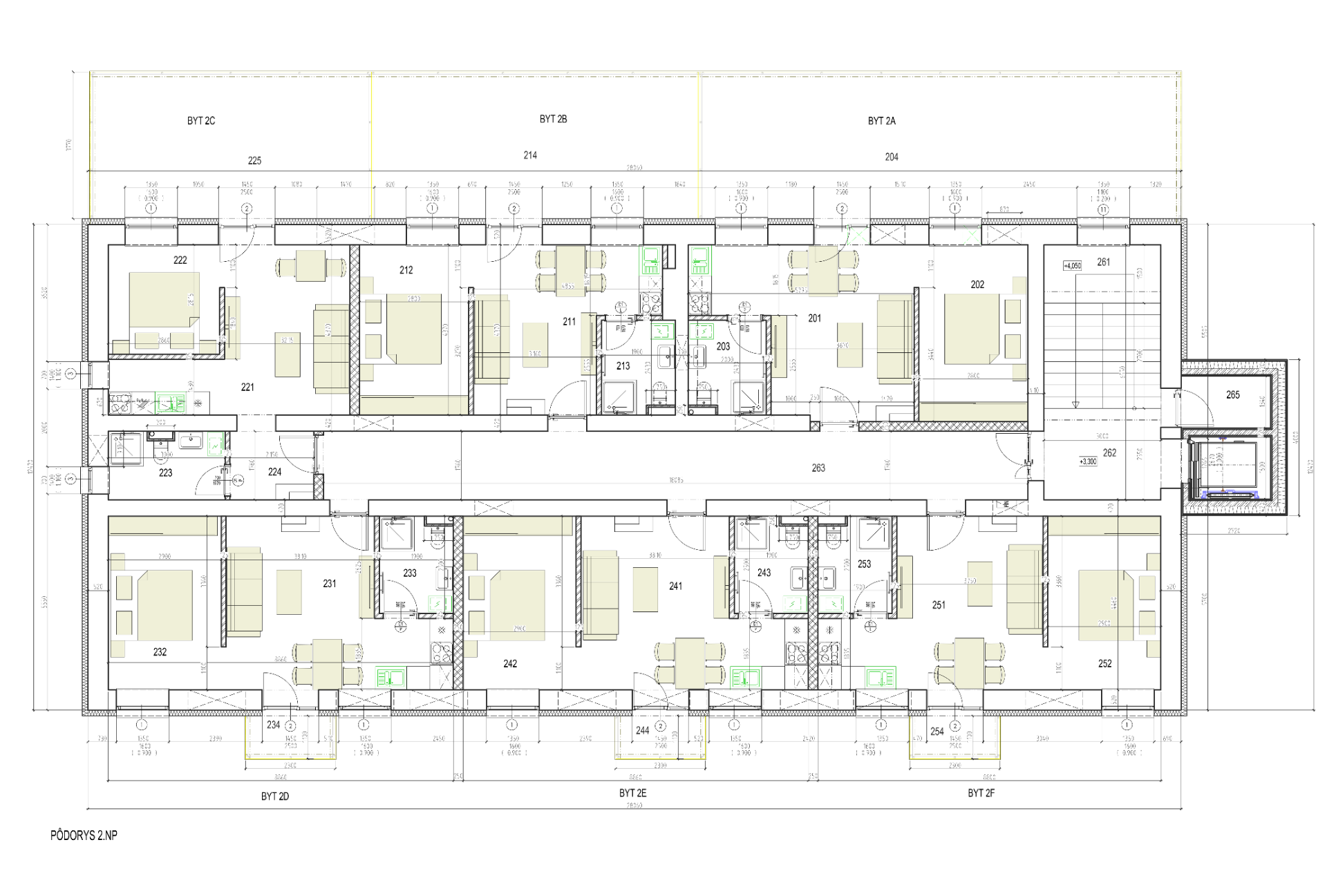
2. nadzemné podlažie
BYT 2A - dvojizbový byt s kúpeľňou a veľkou terasou.
Plocha bytu 35,5m² + terasa 46,5m² + pivničná kobka 2m² + vlastné parkovacie miesto, so vstupom cez hlavný vchod budovy. Byt je otočený smerom na Vysoké Tatry.
BYT 2B - dvojizbový byt s kúpeľňou a veľkou terasou.
Plocha bytu 35,5m² + terasa 31,5m² + pivničná kobka 2m² + vlastné parkovacie miesto, so vstupom cez hlavný vchod budovy. Byt je otočený smerom na Vysoké Tatry.
BYT 2C - dvojizbový byt s kúpeľňou a veľkou terasou.
Plocha bytu 35,7m² + terasa 27m² + pivničná kobka 2m² + vlastné parkovacie miesto, so vstupom cez hlavný vchod budovy. Byt je otočený smerom na Vysoké Tatry.
BYT 2D - dvojizbový byt s kúpeľňou a balkónom.
Plocha bytu 37,8m² + balkón + pivničná kobka 2m² + vlastné parkovacie miesto, so vstupom cez hlavný vchod budovy. Byt je situovaný južným smerom.
BYT 2E - dvojizbový byt s kúpeľňou a balkónom.
Plocha bytu 38,1m² + balkón + pivničná kobka 2m² + vlastné parkovacie miesto, so vstupom cez hlavný vchod budovy. Byt je situovaný južným smerom.
BYT 2F - dvojizbový byt s kúpeľňou a balkónom.
Plocha bytu 37,8m² + balkón + pivničná kobka 2m² + vlastné parkovacie miesto, so vstupom cez hlavný vchod budovy. Byt je situovaný južným smerom.

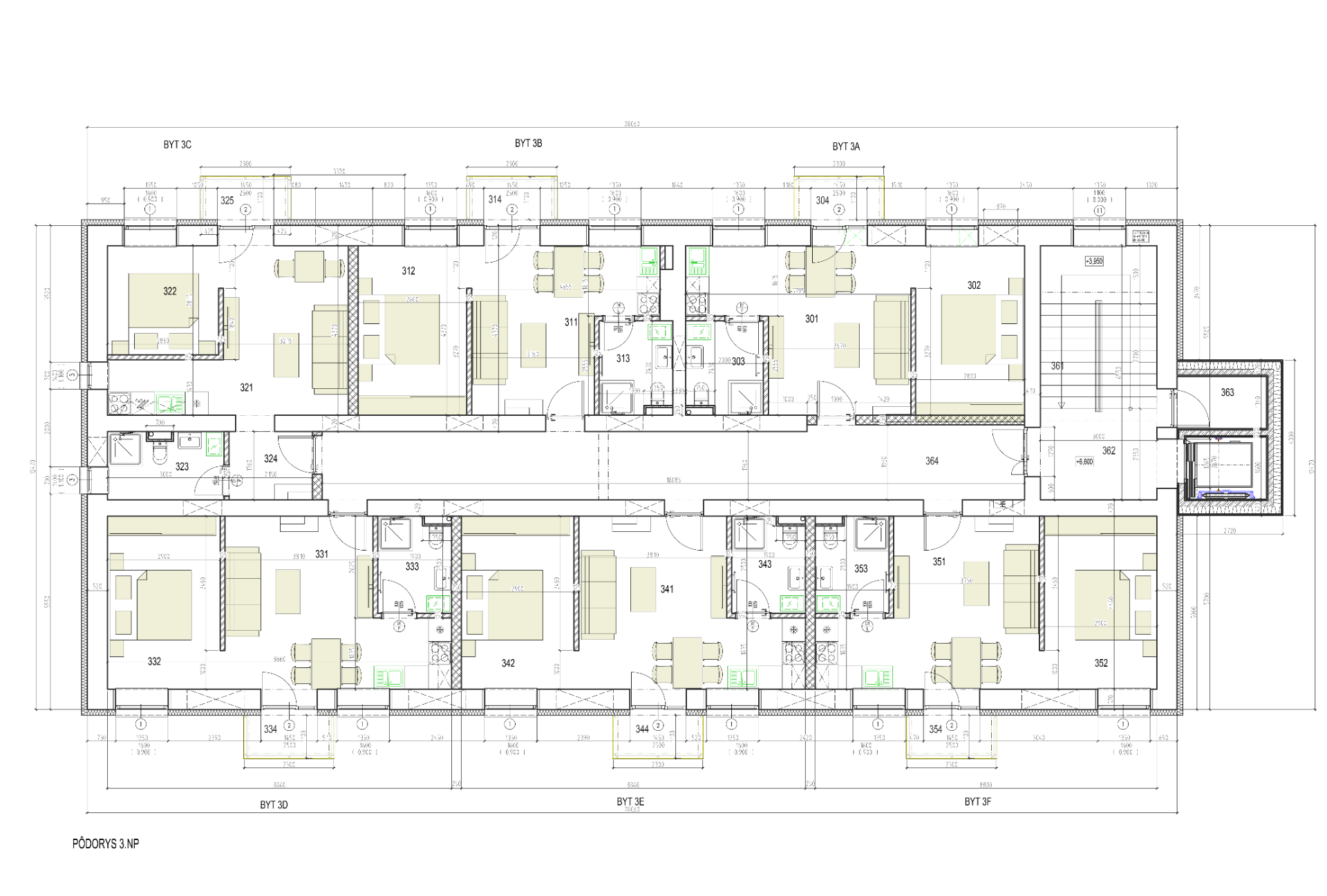
3. nadzemné podlažie
BYT 3A - dvojizbový byt s kúpeľňou a balkónom.
Plocha bytu 35,5m² + balkón + pivničná kobka 2m² + vlastné parkovacie miesto, so vstupom cez hlavný vchod budovy. Byt je situovaný smerom na Vysoké Tatry.
BYT 3B - dvojizbový byt s kúpeľňou a balkónom.
Plocha bytu 35,5m² + balkón + pivničná kobka 2m² + vlastné parkovacie miesto, so vstupom cez hlavný vchod budovy. Byt je situovaný smerom na Vysoké Tatry.
BYT 3C - dvojizbový byt s kúpeľňou a balkónom.
Plocha bytu 35,7m² + balkón + pivničná kobka 2m² + vlastné parkovacie miesto, so vstupom cez hlavný vchod budovy. Byt je situovaný smerom na Vysoké Tatry.
BYT 3D - dvojizbový byt s kúpeľňou a balkónom.
Plocha bytu 37,8m² + balkón + pivničná kobka 2m² + vlastné parkovacie miesto, so vstupom cez hlavný vchod budovy. Byt je situovaný južným smerom.
BYT 3E - dvojizbový byt s kúpeľňou a balkónom.
Plocha bytu 38,1m² + balkón + pivničná kobka 2m² + vlastné parkovacie miesto, so vstupom cez hlavný vchod budovy. Byt je situovaný južným smerom.
BYT 3F - dvojizbový byt s kúpeľňou a balkónom.
Plocha bytu 37,8m² + balkón + pivničná kobka 2m² + vlastné parkovacie miesto, so vstupom cez hlavný vchod budovy. Byt je situovaný južným smerom.

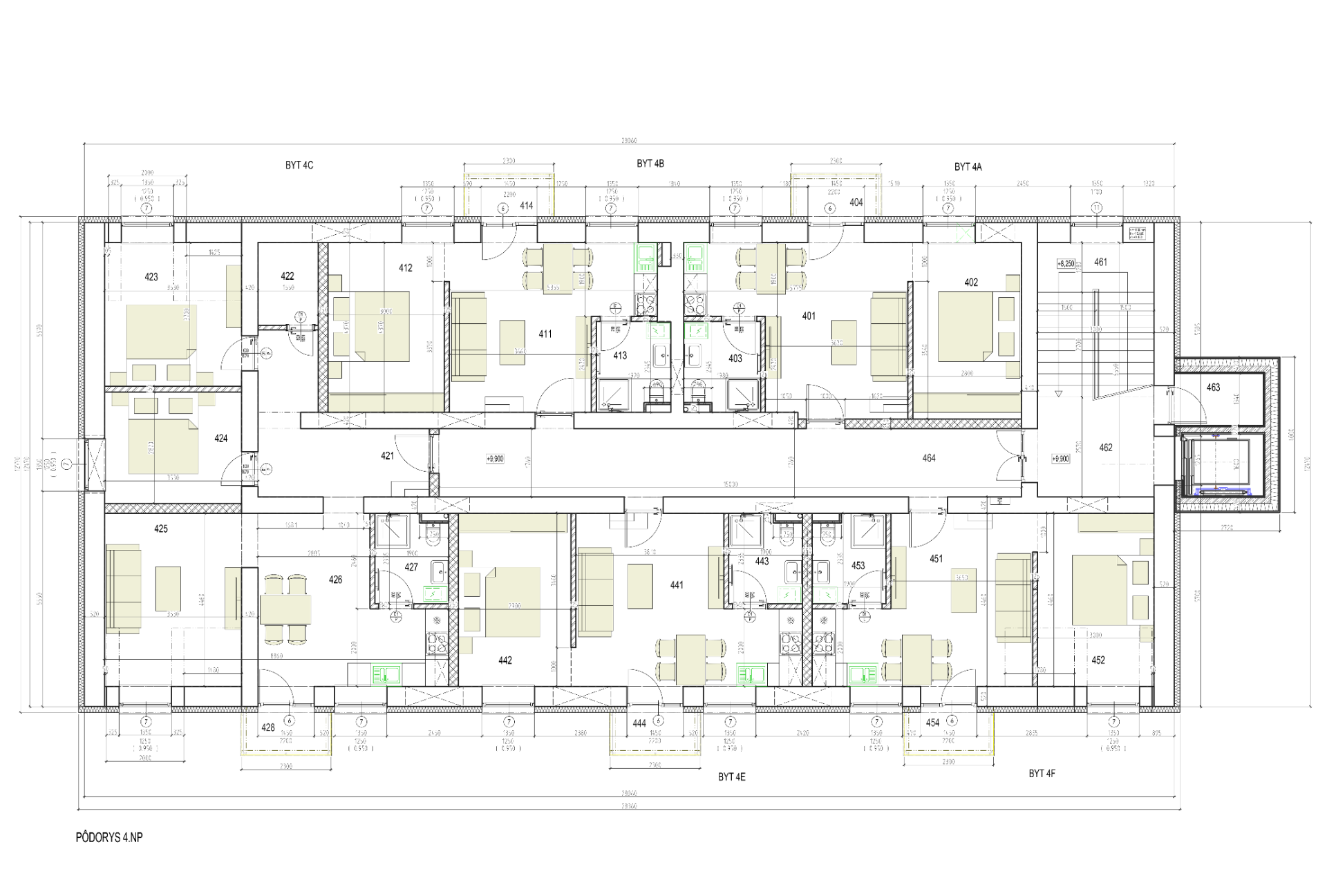
4. nadzemné podlažie
BYT 4A - dvojizbový byt s kúpeľňou a balkónom.
Plocha bytu 40,4m² + balkón + pivničná kobka 2m² + vlastné parkovacie miesto, so vstupom cez hlavný vchod budovy. Byt je situovaný smerom na Vysoké Tatry.
BYT 4B - dvojizbový byt s kúpeľňou a balkónom.
Plocha bytu 39,4m² + balkón + pivničná kobka 2m² + vlastné parkovacie miesto, so vstupom cez hlavný vchod budovy. Byt je situovaný smerom na Vysoké Tatry.
BYT 4C - trojizbový byt s kúpeľňou a balkónom.
Plocha bytu 75,3m² + balkón + vlastná komora v byte + vlastné parkovacie miesto, so vstupom cez hlavný vchod budovy. Byt je situovaný smerom na Vysoké Tatry.
BYT 3E - dvojizbový byt s kúpeľňou a balkónom.
Plocha bytu 38,7m² + balkón + pivničná kobka 2m² + vlastné parkovacie miesto, so vstupom cez hlavný vchod budovy. Byt je situovaný južným smerom.
BYT 3F - dvojizbový byt s kúpeľňou a balkónom.
Plocha bytu 44,4m² + balkón + pivničná kobka 2m² + vlastné parkovacie miesto, so vstupom cez hlavný vchod budovy. Byt je situovaný južným smerom.
